Overview
- Property ID
- 111197
- 3 Bedrooms
- 3 Bathrooms
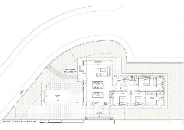
- 155.00 m2
Description
This 3 bedroom house is now available for sale. It is located in a beautiful village Vasa Kellakiou, in a tranquil hillside area, only 30 minutes away from the Limassol town.
The house consists of an open plan kitchen, living and dinning areas, 3 bedrooms (2 bedrooms are en-suite, master bedroom has a walk-in closet), 3 bathrooms, laundry room, and a storage room. The dining area and kitchen are extended by a large partly covered veranda where the family can enjoy an outdoor area and the swimming pool (optional).
The design of the property is modern but presents some features of typical Mediterranean architecture, such as red tiled pitched roof and natural stone decoration of the façade. The house is surrounded by green area.
In the garden, residents can enjoy space, serenity, freedom, beautiful mountain views and a breath of fresh air that benefits mental and physical health.
Delivery date: April 2024













