Overview
- Property ID
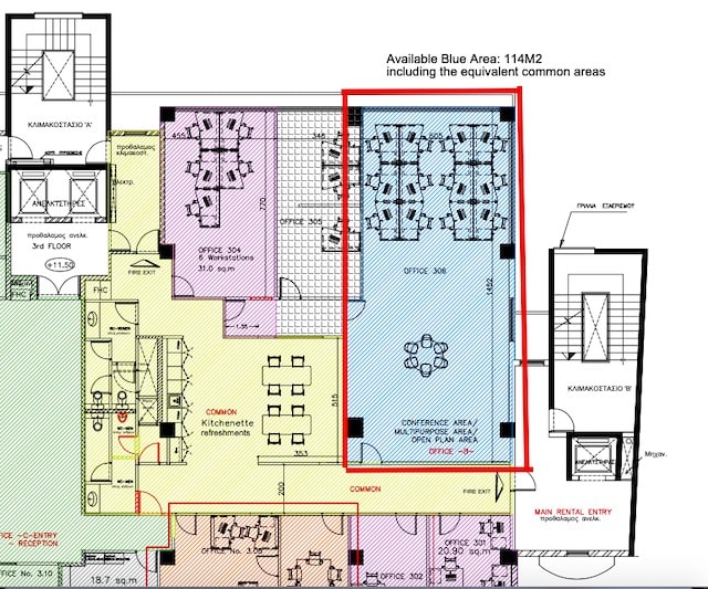
- 136002
- 114.00 m2
Description
This ready to move in large office of 114sqm internal area plus common is now available for rent. Located in the heart of Limassol, in the area of Agia Triada, in close proximity to the seafront and within walking distance to all amenities. The specific office is found on the 3rd floor of a private building. There are 4 toilets, kitchen hub and common dining area. 1 covered parking spaces in the basement and additional to the ground floor are included in the price.
Rent including Operating expenses: €4,800 + VAT per month
Operating expenses are included and encompass daily cleaning, window and carpet cleaning twice a year, catering and sanitary consumables, repairs, maintenance, water & sewage, pest control.
The price does not include electricity cost and telecommunications/internet charges and setup. Electricity will be charged separately according to square meters.
Furthermore, renting this office includes 1 Parking spot in the building (Ground Floor or Basement) and 3 more parking spots at the open space area which is a 3-minute walk away. If required, additional parking spaces in the open space area, can be provided upon availability.
A few features of the available areas are shown below:
-
-
Furniture and fittings
-
-
Rest rooms & refreshment Hub
-
Independent entrance & lift
-
-
Access control security system, CCTV controlled by PwC, Fire extinguishers, fire alarm system
-
-
Open parking place within 3 minutes walking distance
Listing Id: 136002
Price: €4,800 +VAT
Property Size: 114.00 m2
Internal Area (Sq.m.): 160
Other Features
Air Condition
Covered parking
Double glazing
Electrical appliances
Elevator
Furnished
Private complex
Similar Listings
Featured
MACEDON Business Centre – Prime Office Space...
ID 157257 · Size 170.00 m2
Modern Office Space for Rent in Limassol Cit...
ID 151192 · Size 238.00 m2
Ground floor office for rent in the centre
ID 136771 · Size 130.00 m2





















