A high-potential investment plot ideally located in Petrou kai Pavlou area, just a few meters from Makarios Avenue, in the heart of Limassol. Positioned in a quiet cul-de-sac while maintaining immediate access to main roads and all amenities, this property offers the perfect balance of privacy and centrality.
📐 Plot Details
Plot Size: 300 m²
Building Density: 120%
Buildable Area: 360 m² (up to 374 m² with incentives)
Coverage: Suitable for multi-unit residential development
VAT: 0%
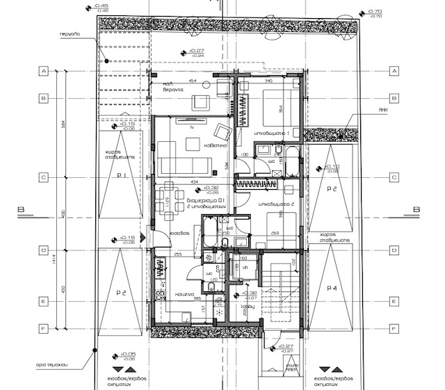
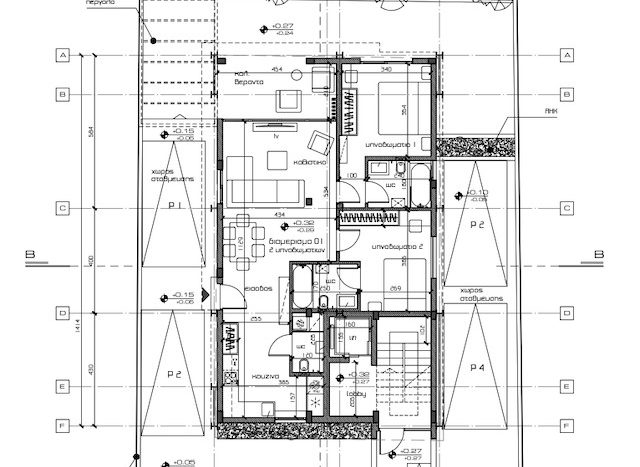
🏢 Development Potential
The plot comes with a ready project concept, making it ideal for developers:
3 × 2-bedroom apartments (ground, 1st and 2nd per floor)
1 × 2-bedroom penthouse (3rd floor plus roof garden)
Total Covered Area: ~430 m²
Covered Verandas: 56 m²
✔️ Low-density building (one unit per floor) ✔️ High demand unit mix (2-bedroom apartments) ✔️ Ideal for resale or rental income
📍 Location Highlights
Prime central location near Makarios Avenue
Walking distance to:
Shops & supermarkets
Cafés & restaurants
Banks & services
Easy access to main roads and business districts
💼 Investment Advantages
High building density (120%)
No VAT – significant cost saving
Ready development concept reduces planning time
Strong rental and resale demand in central Limassol
💰 Asking Price
€430,000 (0% VAT)
This is an excellent opportunity for investors or developers seeking a ready-to-build project in a prime central location with strong returns potential.